深谷市西島に土地面積約64坪の売地が出ました!
フレッセイまで徒歩2分、クスリのアオキまで徒歩5分、セブンイレブンまで徒歩5分と買い物しやすく
深谷小学校まで徒歩11分とお子様の通学もしやすい立地です。
建築条件もないのでお好きなハウスメーカーで建築できます。
ぜひご検討ください。
※物件掲載中にお申込みが入る場合がございますので予めご了承ください。
フレッセイまで徒歩2分、クスリのアオキまで徒歩5分、セブンイレブンまで徒歩5分と買い物しやすく
深谷小学校まで徒歩11分とお子様の通学もしやすい立地です。
建築条件もないのでお好きなハウスメーカーで建築できます。
ぜひご検討ください。
※物件掲載中にお申込みが入る場合がございますので予めご了承ください。
| 価格 | 1,380万円 | 物件番号 | No.B-1116 | |
|---|---|---|---|---|
| 所在地 | 埼玉県深谷市西島61番地6 | 交通・アクセス | 高崎線 深谷駅 徒歩23分 | |
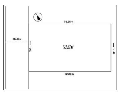
| 土地面積 | 210.72m² (64.04坪) | 学区 | - | |
| 土地権利 | 所有権 | 都市計画 | 市街化区域 | |
| 用途地域 | 第1種中高層 | 地目 | 宅地 | |
| 建ぺい率 | 60 % | 容積率 | 200 % | |
| 接面道路 |
西側4m公道
-
-
-
|
設備 |
電気:
東京電力
ガス:
プロパンガス
水道:
公営
排水:
公共下水
|
|
| 現況 |
更地
|
地勢 | 平坦 | |
| 国土法届出 | - | 建築条件 | 無 | |
| 引渡し |
相談
|
取引形態 | 仲介 | |
| 備考・その他 |
水道メーター13㎜ 測量後の引き渡し |
|||
| 価格 | 1,380万円 | |||
| 物件番号 | No.B-1116 | |||
| 所在地 | 埼玉県深谷市西島61番地6 | |||
| 交通・アクセス | 高崎線 深谷駅 徒歩23分 | |||
| 土地面積 | 210.72m² (64.04坪) | |||
| 所有権 | ||||
| 市街化区域 | ||||
| 第1種中高層 | ||||
| 宅地 | ||||
| 60 % | ||||
| 200 % | ||||
|
西側4m公道
-
-
-
|
||||
|
電気:
東京電力
ガス:
プロパンガス
水道:
公営
排水:
公共下水
|
||||
|
更地
|
||||
| 平坦 | ||||
| - | ||||
| 無 | ||||
|
相談
|
||||
| 仲介 | ||||
|
水道メーター13㎜ 測量後の引き渡し |
||||
所在地マップ・交通案内
-
フレッセイ 田谷店
(距離:0.151km) -
クスリのアオキ 田谷店
(距離:0.277km) -
セブンイレブン 深谷田谷店
(距離:0.334km) -
深谷市立深谷小学校
(距離:0.55km) -
深谷城址公園
(距離:0.592km) -
ウエルシア 東大沼店
(距離:0.595km) -
深谷市立深谷中学校
(距離:0.612km) -
コープ 深谷店
(距離:0.963km)
近くの似た物件
お問合せ

【埼玉県知事免許(7)第016662号】
株式会社 横田ハウジング
〒366-0052 埼玉県深谷市上柴町西4丁目6-8
株式会社 横田ハウジング
〒366-0052 埼玉県深谷市上柴町西4丁目6-8






