人気の深谷市国済寺エリアに4LDKの新築住宅を建築中です♪
ライフスタイルに合わせて将来2部屋に分けることができる10帖洋室をはじめ、
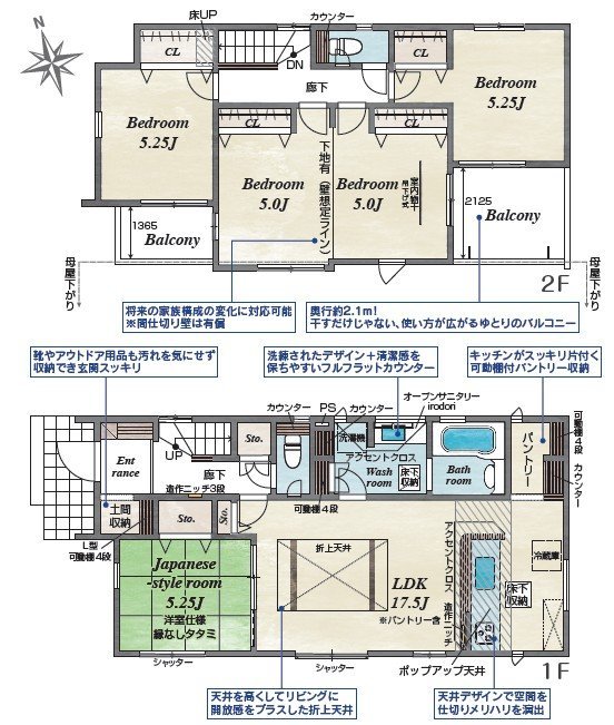
奥行き約2.1mのバルコニーは、洗濯物干しだけでなく、読書やコーヒーを楽しむアウトドアリビングとしても活躍します。
全室南向きで日中は暖かい陽射しが差し込み、家族の時間がより快適に。
玄関の土間収納、キッチンパントリー、各居室収納など、収納計画も充実しており、住むほどに快適さを実感できる間取りとなっています。
周辺には買い物施設や学校が揃い、生活利便性の高いエリアです。
ベルク(徒歩6分)、ウエルシア(徒歩3分)、セブンイレブン(徒歩6分)が徒歩圏内で、日々の買い物が快適。
JR高崎線「深谷駅」まで徒歩14分で、通勤・通学にも便利です。
また、常盤小学校まで徒歩16分、幡羅中学校まで徒歩17分と教育環境も整っており、子育て世帯にも安心の立地です。
現在建築中ですが、近隣完成物件をご案内可能です。
ぜひお問い合わせください!
※物件掲載中にお申し込みが入る場合がございますので予めご了承ください。
| 価格 | 3,690万円 | 物件番号 | No.B-1091 | |
|---|---|---|---|---|
| 所在地 | 埼玉県国済寺字松原67-6 | 交通・アクセス | 高崎線 深谷駅 徒歩14分 | |
| 土地面積 | 197.99m² (59.89坪) | 学区 |
深谷市立幡羅中学校 (距離:0.96km) 深谷市立常盤小学校 (距離:0.831km) |
|
| 建物面積 | 107.59m² (32.54坪) | 築年月 | - | |
| 建物構造 |
木造サイディング造アスファルトシングル葺2階建て
|
建物完成時期 |
令和8年3月下旬予定
|
|
| 間取り |
4LDK
|
駐車場 |
2台
|
|
| 土地権利 | 所有権 | 地目 | 畑 | |
| 地勢 | 平坦 | 都市計画 | 市街化区域 | |
| 用途地域 | 第1種住居地域 | 国土法届出 | - | |
| 主要採光 | - | 建ぺい率 | 60 % | |
| 容積率 | 200 % | 現況 |
建築中
|
|
| 引渡し |
令和8年4月下旬予定
|
接面道路 |
西側10m公道
-
-
-
|
|
| 設備 |
電気:
東京電力
ガス:
都市ガス
水道:
公営
排水:
公共下水
|
備考・その他 |
・農地転用5条届出必要 ・仮換地:深谷都市計画事業国済寺土地区画整理事業36街区27・28画地。仮換地清算金3ポイント徴収 |
|
| 取引形態 | 仲介 | |||
| 価格 | 3,690万円 | |||
| 物件番号 | No.B-1091 | |||
| 所在地 | 埼玉県国済寺字松原67-6 | |||
| 交通・アクセス | 高崎線 深谷駅 徒歩14分 | |||
| 学区 |
深谷市立幡羅中学校 (距離:0.96km) 深谷市立常盤小学校 (距離:0.831km) |
築年月 | - | |
| 土地面積 | 197.99m² (59.89坪) | |||
| 建物面積 | 107.59m² (32.54坪) | |||
|
木造サイディング造アスファルトシングル葺2階建て
|
||||
|
令和8年3月下旬予定
|
||||
|
4LDK
|
||||
|
2台
|
||||
| 所有権 | ||||
| 畑 | ||||
| 平坦 | ||||
| 市街化区域 | ||||
| 第1種住居地域 | ||||
| - | ||||
| - | ||||
| 60 % | ||||
| 200 % | ||||
|
建築中
|
||||
|
令和8年4月下旬予定
|
||||
|
西側10m公道
-
-
-
|
||||
|
電気:
東京電力
ガス:
都市ガス
水道:
公営
排水:
公共下水
|
||||
|
・農地転用5条届出必要 ・仮換地:深谷都市計画事業国済寺土地区画整理事業36街区27・28画地。仮換地清算金3ポイント徴収 |
||||
| 仲介 | ||||
所在地マップ・交通案内
-
ウエルシア 深谷中央店
(距離:0.177km) -
桜ヶ丘病院
(距離:0.205km) -
業務スーパー 深谷店
(距離:0.401km) -
ベルク 深谷稲荷町店
(距離:0.432km) -
クスリのアオキ 国済寺店
(距離:0.534km) -
深谷市立常盤小学校
(距離:0.834km) -
深谷市立幡羅中学校
(距離:0.974km)
近くの似た物件
お問合せ

【埼玉県知事免許(7)第016662号】
株式会社 横田ハウジング
〒366-0052 埼玉県深谷市上柴町西4丁目6-8
株式会社 横田ハウジング
〒366-0052 埼玉県深谷市上柴町西4丁目6-8






