売主につき、仲介手数料なし
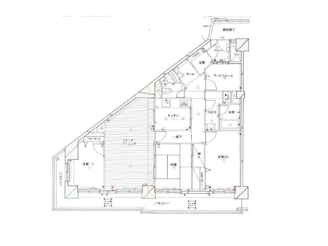
ダイアパレスBW深谷にフルリフォーム済みでバルコニー2面、眺望の良いお部屋の物件がでました!お部屋が広々約97㎡で、2面バルコニーに面したお部屋です。12階につき、眺望良好♪
充実リフォームですぐお住まいになれますよ。
【リフォーム内容】
・壁・天井クロス貼替
・トイレ新品交換
・洗面化粧台新品交換
・ユニットバス新品交換
・キッチン新品交換
・給湯器新品交換
・下駄箱新品交換
・畳及び襖貼替え
・居室及び玄関及び廊下床フローリング貼替 ※サービスルーム除く
・全居室照明器具新品交換
近隣には便利な施設がそろっており、
ドラッグストアアオキまで徒歩2分、深谷郵便局まで徒歩3分と、アリオ深谷まで徒歩14分と
暮らしやすい立地も魅力です♪
現在空室で内見も可能ですのでぜひ、ご検討下さい。
※物件掲載中にご成約になる場合がございます。
360°パノラマ画像で物件をご紹介
【深谷市上野台 中古マンション】仲介手数料不要♪フルリフォーム済み!眺望良好で2面バルコニーのお部屋~ダイアパレスBW深谷12F~
| 価格 | 1,480万円 | 物件番号 | No.B-1059 | |
|---|---|---|---|---|
| 所在地 | 深谷市上野台2352番地 | 交通・アクセス | 深谷駅 徒歩16分 | |
| 土地面積 | - | 学区 |
深谷市立上柴中学校 (距離:1.232km) 深谷市立上柴西小学校 (距離:0.759km) |
|
| 建物面積 | - | 築年月 | 1991年02月 | |
| 専有面積 | 96.93 m² (29.32 坪) | 建物構造 |
鉄骨鉄筋コンクリート造
|
|
| 間取り |
3LDK+S
|
都市計画 | 市街化区域 | |
| 用途地域 | 第1種住居地域 | 所在階 | 12 階 | |
| 管理費 | 13,360 円/月 | 修繕積立金 | 13,920 円/月 | |
| 管理形態 |
全部委託
|
管理会社 |
㈱東急コミュニティー
|
|
| 管理組合 | 有 | 設備 |
電気:
東京電力
ガス:
都市ガス
水道:
公営
排水:
公共下水
|
|
| 駐車場 |
空き要確認
|
土地権利 | 所有権 | |
| 主要採光 | 南西 | 建ぺい率 | 60 % | |
| 容積率 | 200 % | 現況 |
空室
|
|
| 引渡し |
相談
|
接面道路 |
-
-
-
-
|
|
| 備考・その他 | ・敷地内テニスコート、公園あり | 取引形態 | 売主 | |
| 価格 | 1,480万円 | |||
| 物件番号 | No.B-1059 | |||
| 所在地 | 深谷市上野台2352番地 | |||
| 交通・アクセス | 深谷駅 徒歩16分 | |||
| 学区 |
深谷市立上柴中学校 (距離:1.232km) 深谷市立上柴西小学校 (距離:0.759km) |
築年月 | 1991年02月 | |
| 96.93 m² (29.32 坪) | ||||
|
鉄骨鉄筋コンクリート造
|
||||
|
3LDK+S
|
||||
| 市街化区域 | ||||
| 第1種住居地域 | ||||
| 12 階 | ||||
| 13,360 円/月 | ||||
| 13,920 円/月 | ||||
|
全部委託
|
||||
|
㈱東急コミュニティー
|
||||
| 有 | ||||
|
電気:
東京電力
ガス:
都市ガス
水道:
公営
排水:
公共下水
|
||||
|
空き要確認
|
||||
| 所有権 | ||||
| 南西 | ||||
| 60 % | ||||
| 200 % | ||||
|
空室
|
||||
|
相談
|
||||
|
-
-
-
-
|
||||
| ・敷地内テニスコート、公園あり | ||||
| 売主 | ||||
所在地マップ・交通案内
-
クスリのアオキ 上野台店
(距離:0.132km) -
深谷上野台郵便局
(距離:0.197km) -
ファミリーマート 深谷南大通り店
(距離:0.224km) -
武蔵野銀行 深谷支店
(距離:0.307km) -
ミニストップ 桜ヶ丘店
(距離:0.353km) -
スーパーオザム 深谷店
(距離:0.362km) -
ウエルシア 深谷上野台店
(距離:0.426km) -
オリンピック
(距離:0.538km)
近くの似た物件
お問合せ

【埼玉県知事免許(7)第016662号】
株式会社 横田ハウジング
〒366-0052 埼玉県深谷市上柴町西4丁目6-8
株式会社 横田ハウジング
〒366-0052 埼玉県深谷市上柴町西4丁目6-8






